Dobra (Szczecińska), Wołczkowo

Dom na sprzedaż

4 pokoje 130,00 m2 7 615,38 zł/m2

990 000 zł

nowa oferta

Opis nieruchomości

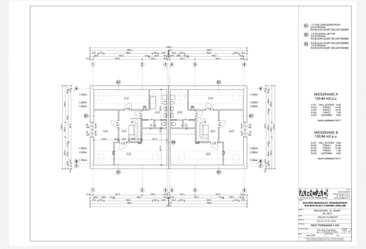
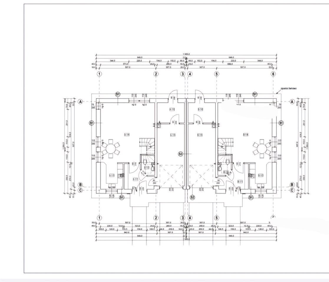
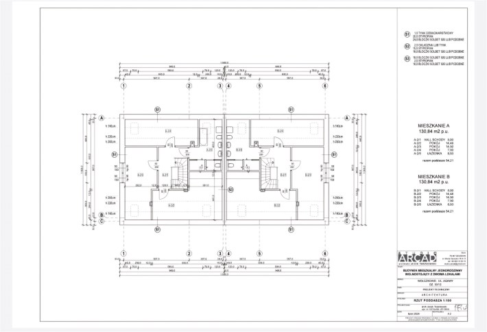
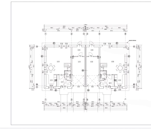
Dom jednorodzinny dwulokalowy w zabudowie bliźniaczej, na na działce 425 m2, o powierzchni użytkowej 130m2 powierzchni użytkowej. W projekcie podwójna ściana z dylatacją między sąsiadami co jest wymagane w zabudowie bliźniaczej a czego nikt z deweloperów nie stosuje w przypadku budynków dwulokalowych. Dostępne media: prąd, woda z wodociągu miejskiego, pompa ciepła, szambo.  Budynki w stanie deweloperskim z elewacją i mediami doprowadzonymi do budynku.  Budynki w tracie wykańczania, do wydania w I kwartale 2026 roku

Nota prawna

Opis oferty zawarty na stronie internetowej sporządzany jest na podstawie oględzin nieruchomości oraz informacji uzyskanych od właściciela, może podlegać aktualizacji i nie stanowi oferty określonej w art. 66 i następnych K.C.

Szczegóły

Symbol oferty LH1-DS-41743
Powierzchnia 130,00 m²
Powierzchnia działki 425 m²
Liczba pokoi 4
Rodzaj domu bliźniak
Standard
Garaż garaż
Stan prawny Wlasnosc
Okna PCV
Zagosp. działki niezagospodarowana
Ukształtowanie działki płaska
Kształt działki prostokąt
Pokrycie dachu dachówka
Pozwolenie na użytkowanie tak
Stan budynku do wykończenia
Ogrodzenie działki częściowo ogrodzona
Rok budowy 2025
Woda ciepła - miejska
Dojazd droga gruntowa
Otoczenie działki zabudowane
Ogrzewanie pompa ciepła
Tarasy taras duży
Prąd jest
Kanalizacja szambo

Pomieszczenia

Rodzaj kuchni aneks kuchenny - połączony z salonem
Liczba łazienek 2
Liczba przedpokoi 1

Podobne oferty

Dom na sprzedaż - Dobra (Szczecińska), Mierzyn
dom na sprzedaż - Dobra (Szczecińska), Mierzyn

LH1-DS-41734

Dobra (Szczecińska), Mierzyn
dom na sprzedaż

4 pokoje 104,00 m²

859 000
8 259,62 zł/m2
nowa oferta
Dodaj
do notatnika
Dom na sprzedaż - Dobra (Szczecińska), Wołczkowo
dom na sprzedaż - Dobra (Szczecińska), Wołczkowo

WALA-DS-208

Dobra (Szczecińska), Wołczkowo
dom na sprzedaż

6 pokoi 153,40 m²

1 249 000
8 142,11 zł/m2
Dodaj
do notatnika
Dom na sprzedaż - Dobra (Szczecińska), Mierzyn
dom na sprzedaż - Dobra (Szczecińska), Mierzyn

LH1-DS-41493

Dobra (Szczecińska), Mierzyn
dom na sprzedaż

5 pokoi 156,24 m²

950 000
6 080,39 zł/m2
Dodaj
do notatnika
Dom na sprzedaż - Dobra (Szczecińska), Dobra
dom na sprzedaż - Dobra (Szczecińska), Dobra

TDR-DS-1961

Dobra (Szczecińska), Dobra
dom na sprzedaż

5 pokoi 138,00 m²

1 249 000
9 050,72 zł/m2
Dodaj
do notatnika
PLN
PLN
PLN
PLN
PLN
PLN
PLN
%
PLN
PLN
PLN

PLN

Dane:

PLN
%

Wynik:

PLN
pierwsza rata
ostatnia rata

Napisz do nas

Proszę wypełnić to pole
Proszę wypełnić to pole
Proszę wypełnić to pole
Proszę wypełnić to pole
Trwa wysyłanie...

Ta strona wykorzystuje pliki cookies w celach statystycznych oraz w celu dostosowania naszych serwisów do indywidualnych potrzeb klientów. Zmiany ustawień dotyczących plików cookie można dokonać w dowolnej chwili modyfikując ustawienia przeglądarki. Korzystanie z tej strony bez zmian ustawień dotyczących cookies oznacza, że będą one zapisane w pamięci urządzenia.

rozumiem