Opis nieruchomości
Na sprzedaż lokal użytkowy o powierzchni 66,86 m², wykończony w wysokim standardzie, obecnie przystosowany do prowadzenia działalności medycznej. Idealny pod gabinety lekarskie lub kosmetologiczne.
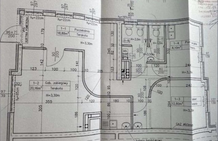
W skład lokalu wchodzą:
-
gabinet zabiegowy – 20,16 m²
-
gabinet diagnostyczny – 12,80 m²
-
pomieszczenie socjalne – 8,10 m²
-
przedsionek – 2,40 m²
-
WC z bidetem dla pacjentów – 2,15 m²
-
WC dla personelu – 1,24 m²
Lokal znajduje się na parterze jednopiętrowego budynku, z niezależnym, własnym wejściem. Jest w pełni umeblowany i wyposażony, posiada klimatyzację, rolety oraz drzwi antywłamaniowe, a także system alarmowy. Dojazd odbywa się drogą asfaltową, z dostępem do miejsc parkingowych.
Na wyposażeniu gabinetów znajdują się m.in.:
-
laser frakcyjny CO₂,
-
laser diodowy LIGHTSHEER ET,
-
IPL HS-320C Yasumi,
-
ewakuator dymu Clean Vac-Smoke,
-
aparat USG,
-
fotel regulowany elektrycznie,
-
fotel regulowany ręcznie.
Lokal jest gotowy do natychmiastowego użytkowania, nie wymaga żadnych nakładów inwestycyjnych ani remontu.
Istnieje możliwość zakupu lokalu bez wyposażenia – cena do negocjacji.