Szczecin, Centrum

Lokal do wynajęcia

parter 412,42 m2 72,74 zł/m2

30 000 zł

Opis nieruchomości

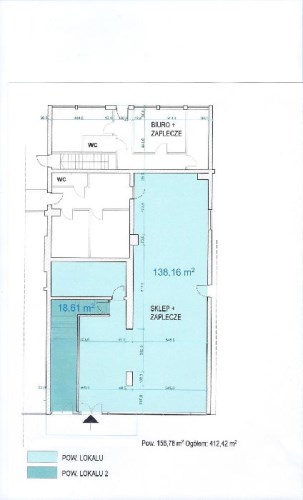
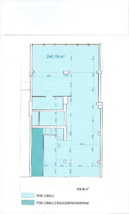
Posiadam do wynajęcia lokal handlowy przy al. Wojska Polskiego dwu kondygnacyjny w ścisłym Centrum miasta. Lokal posiada na długości 11,5m na parterze i na piętrze wysokie witryny. Wysokość pomieszczeń 3,2m. Powierzchnia parteru 157,56m2, piętra 254,86, łącznie 412,42. Możliwość wynajęcia osobno parteru lub piętra Proponowana cena za wynajem całości 30 000,00netto plus opłaty. Kaucja jednomiesięczna. W związku z tym, iż można wynająć osobno powierzchnie parteru czy piętra cena podlega negocjacją, jesteśmy otwarci na propozycje. Pod lokalem mieści się również piwnica o powierzchni 160m2 Właściciel jest w stanie przystosować lokal do oczekiwań wynajmującego.

Nota prawna

Opis oferty zawarty na stronie internetowej sporządzany jest na podstawie oględzin nieruchomości oraz informacji uzyskanych od właściciela, może podlegać aktualizacji i nie stanowi oferty określonej w art. 66 i następnych K.C.

Szczegóły

Symbol oferty LH1-LW-9552
Powierzchnia 412,42 m²
Piętro parter
Standard
Wystawa okien Lokal posiada na długości 11,5m na parterze i na piętrze wysokie witryny.
Stan lokalu do wprowadzenia
Typ kaucji jednomiesięczna
Okna nowe PCV
Rodzaj lokalu wielopoziomowy
Przeznaczenie lokalu biurowy, handlowo-usługowy, handlowy, usługowy
Dojazd asfalt

Podobne oferty

Lokal do wynajęcia - Szczecin, Pomorzany
lokal do wynajęcia - Szczecin, Pomorzany

LH1-LW-40459

Szczecin, Pomorzany
lokal do wynajęcia

750,00 m²

33 750
45,00 zł/m2
Dodaj
do notatnika
Lokal do wynajęcia - Szczecin, Niemierzyn
lokal do wynajęcia - Szczecin, Niemierzyn

MTM-LW-6791

Szczecin, Niemierzyn
lokal do wynajęcia

400,00 m²

30 000
75,00 zł/m2
Dodaj
do notatnika
Lokal do wynajęcia - Szczecin, Pomorzany
lokal do wynajęcia - Szczecin, Pomorzany

KNG-LW-9531

Szczecin, Pomorzany
lokal do wynajęcia

500,00 m²

22 500
45,00 zł/m2
Dodaj
do notatnika

Napisz do nas

Proszę wypełnić to pole
Proszę wypełnić to pole
Proszę wypełnić to pole
Proszę wypełnić to pole
Trwa wysyłanie...

Ta strona wykorzystuje pliki cookies w celach statystycznych oraz w celu dostosowania naszych serwisów do indywidualnych potrzeb klientów. Zmiany ustawień dotyczących plików cookie można dokonać w dowolnej chwili modyfikując ustawienia przeglądarki. Korzystanie z tej strony bez zmian ustawień dotyczących cookies oznacza, że będą one zapisane w pamięci urządzenia.

rozumiem