Stargard (gw)

Mieszkanie na sprzedaż

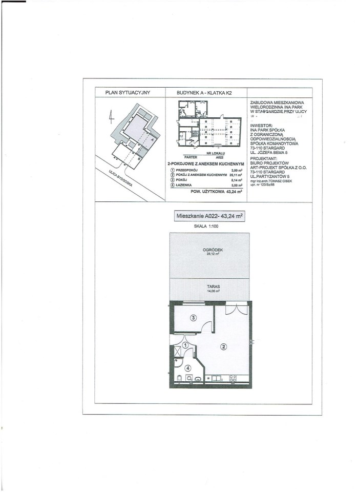
2 pokoje parter 43,26 m2 10 402,22 zł/m2

450 000 zł

nowa oferta

Opis nieruchomości

Na sprzedaż mieszkanie z ogródkiem, w kameralnym budynku z 2018 roku.
Na powierzchnię 43,26 m2, składają się : pokój z aneksem kuchennym 26,11m2, sypialnia 8,14 m2, przedpokój 3,99 m2, łazienka wraz z toaletą 5 m2.
Do mieszkania przynależy taras 14,06 m2, płynnie przechodzący w ogródek 28,12m2 . Całość gruntu na zewnątrz, 42,18 m2, ogrodzono panelami siatkowymi.
Czynsz miesięczny w wys. 650 zł zawiera w sobie FR, zaliczki na zimną wodę, kanalizację, wywóz śmieci, ogrzewanie, naprawy bieżące, monitoring, sprzątanie, koszty zarządzania.
Ogrzewanie budynku realizowane jest własną kotłownią gazową. Mieszkania są rozliczane na podstawie odczytu indywidualnych podzielników.  
Cena zawiera wyposażenie widoczne na zdjęciach i podlega rozsądnym negocjacjom. Mieszkanie wolne od zaraz. 

Nota prawna

Opis oferty zawarty na stronie internetowej sporządzany jest na podstawie oględzin nieruchomości oraz informacji uzyskanych od właściciela, może podlegać aktualizacji i nie stanowi oferty określonej w art. 66 i następnych K.C.

Szczegóły

Symbol oferty NWW-MS-60
Powierzchnia 43,26 m²
Liczba pokoi 2
Piętro parter
PLN
PLN
PLN
PLN
PLN
PLN
PLN
%
PLN
PLN
PLN

PLN

Dane:

PLN
%

Wynik:

PLN
pierwsza rata
ostatnia rata

Napisz do nas

Proszę wypełnić to pole
Proszę wypełnić to pole
Proszę wypełnić to pole
Proszę wypełnić to pole
Trwa wysyłanie...

Ta strona wykorzystuje pliki cookies w celach statystycznych oraz w celu dostosowania naszych serwisów do indywidualnych potrzeb klientów. Zmiany ustawień dotyczących plików cookie można dokonać w dowolnej chwili modyfikując ustawienia przeglądarki. Korzystanie z tej strony bez zmian ustawień dotyczących cookies oznacza, że będą one zapisane w pamięci urządzenia.

rozumiem