Opis nieruchomości
BEZCZYNSZOWE MIESZKANIE W SERCU BEZRZECZA | PARTER | OGRÓDEK | 2 MIEJSCA PARKINGOWE | STAN DEWELOPERSKI
Szukasz nowoczesnego, komfortowego mieszkania w spokojnej okolicy, ale blisko miasta? To oferta, na którą czekałeś!
Nowe, bezczynszowe mieszkanie w kameralnej zabudowie bliźniaczej przy ul. Wroniej i Różany Zakątek w Bezrzeczu. Idealne dla rodzin, osób starszych i niepełnosprawnych – wszystko zaprojektowane z myślą o wygodzie i funkcjonalności.
Wyobraź sobie poranek na tarasie, gdzie delektujesz się kawą w promieniach słońca. Dzieci bawią się w ogródku, a Ty cieszysz się spokojem tej kameralnej okolicy, jednocześnie mając wszystko w zasięgu ręki – sklepy, szkoły, przedszkola i szybki dojazd do Szczecina.
To mieszkanie zostało zaprojektowane z myślą o Tobie – przestronny salon, funkcjonalna kuchnia i trzy wygodne sypialnie tworzą idealne miejsce do życia. Nowoczesne technologie, niskie koszty eksploatacji i komfortowe warunki sprawiają, że to mieszkanie to doskonała inwestycja na lata!
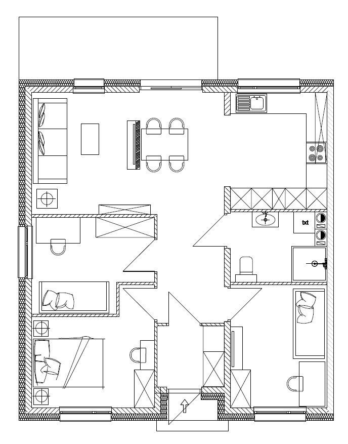
Powierzchnia użytkowa: 71,36 m²
Salon z jadalnią – 19,08 m²
Kuchnia – 9,60 m²
Trzy sypialnie – 9,86 m², 9,56 m², 8,57 m²
Łazienka – 5,61 m²
Wiatrołap – 3,23 m²
Komunikacja – 5,85 m²
INSTALACJE I TECHNOLOGIE
- Ogrzewanie podłogowe + kocioł gazowy – komfortowe i ekonomiczne rozwiązanie
- Rekuperacja – odzysk ciepła, niższe rachunki, lepsza jakość powietrza
- Woda i kanalizacja miejska – bez konieczności obsługi dodatkowych systemów
- Zasilanie kablem ziemnym – nowoczesna i bezpieczna infrastruktura
PREZENTACJA MIESZKANIA W TOWARZYSTWIE ARCHITEKTA WNĘTRZ!
Masz okazję zobaczyć, jak może wyglądać Twoje przyszłe mieszkanie i omówić możliwości aranżacji!
Umów się już dziś i zarezerwuj swoje wymarzone mieszkanie!
Pomagamy w uzyskaniu kredytu – skontaktuj się z nami i sprawdź swoją zdolność!
Nota prawna
Opis oferty zawarty na stronie internetowej sporządzany jest na podstawie oględzin nieruchomości oraz informacji uzyskanych od właściciela, może podlegać aktualizacji i nie stanowi oferty określonej w art. 66 i następnych K.C.Szczegóły



